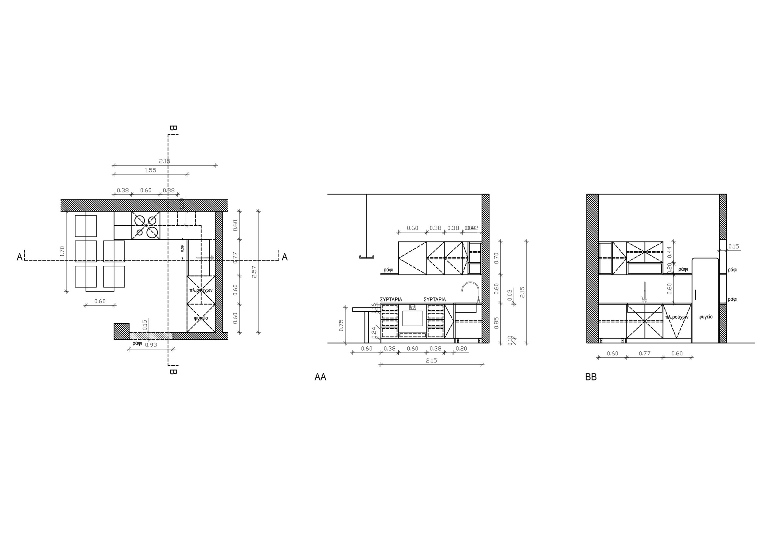
THE PALAIOCHORA HOUSE

House renovation in an existing 70s summer house